El proyecto podría no ser construido e incluso peligra la asignación de recursos para su ejecución.
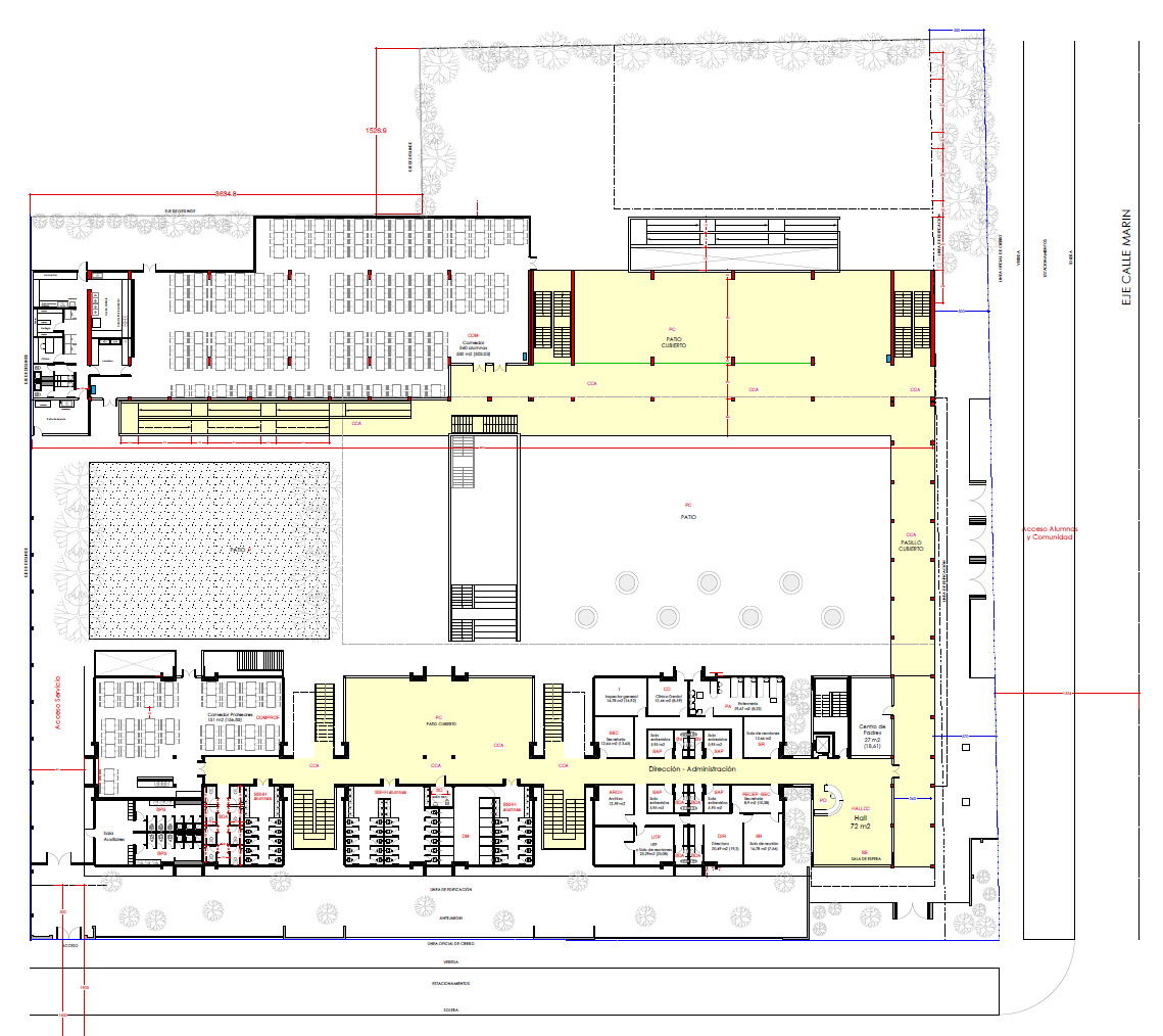
Un nuevo gran edificio de 4 pisos y 2 subterráneos contempla el proyecto de reposición de infraestructura que fuera presentado por la alcaldesa Josefa Errázuriz y cuyo financiamiento de más de 4 mil millones de pesos, fuera aprobado por parte del Ministerio de Educación en el marco del proyecto Sello y que debería comenzar a construirse a inicios de 2018.
El nuevo edificio considera la construcción de un gimnasio y patio subterráneos, biblioteca, comedor, accesibilidad universal contemplando aumento del espacio disponible por alumna dentro de la propia sala de clases, mejorando sustancialmente la estadía en el establecimiento.
Para la construcción del nuevo edificio, ubicado en el mismo sitio que el actual, se requiere demoler el edificio existente y reubicar por el periodo de 2 años, todas las actividades del liceo en otras instalaciones y sería lo que estaría colocando en riesgo todo el proyecto.
La administración de Evelyn Matthei solicitó al Ministerio de Educación, en el mes de septiembre de 2017, un suplemento de $1.200.000.000 para arriendo de salas de clases por cada año que dure la construcción del nuevo edificio, lo que habría sido rechazado por el Ministerio.
La negativa recibida por la alcadesa sería parte de las razones que la llevaron a realizar el anuncio de devolver la administración de los colegios al estado en forma voluntaria.
A la fecha, la Municipalidad de Providencia no ha informado sobre el inicio de los trabajos, con la sola excepción del cierre del jardín Infantil Belén que debía ser trasladado para dejar su terreno como parte del nuevo liceo.









